
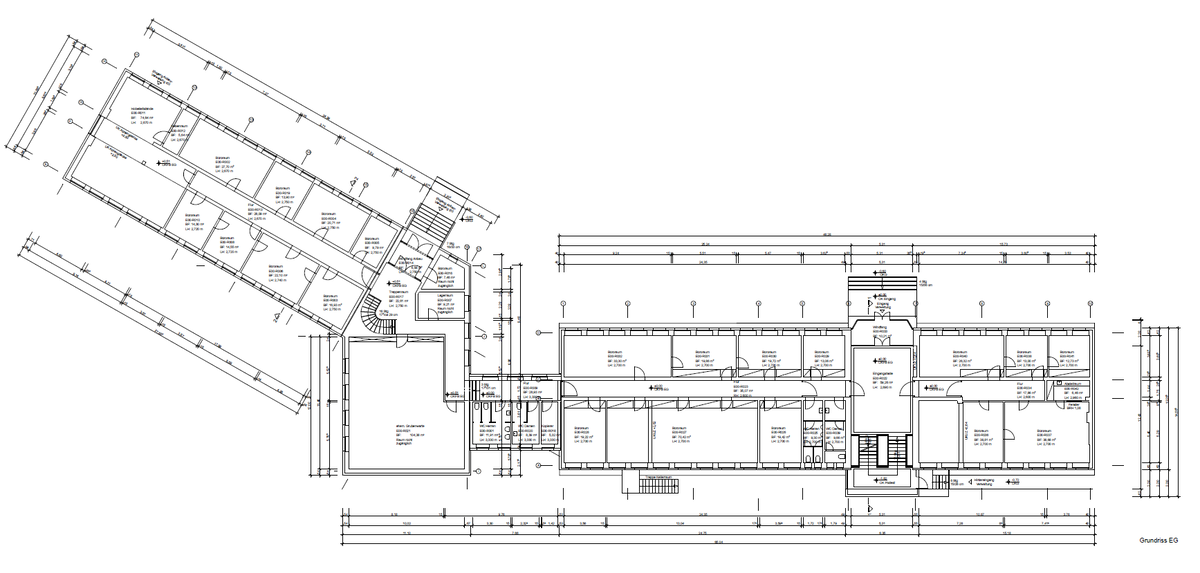
Verwaltungsgebäude
Bei der 1957 errichteten Verwaltung der Zeche Westerholt handelt es sich um ein typisches Verwaltungsgebäude aus den 60er Jahren. Bis zur Zechenschließung war es das Hauptverwaltungsgebäude und hat in dem eingeschossigen Gebäudeteil die Grubenwarte (elektronische und digitale Schaltzentrale des Untertagebetriebes) beheimatet. Auch wenn die klassische Aufteilung mit mittlerer Verkehrsfläche und seitlich gelegenen Büros ein typischer Bürobau ist, stellt dieser sich nicht als typische Spezialimmobilie dar.
Konzept für eine mögliche Nachnutzung
Neben der Nachnutzung als Bürogebäude hat das Gebäude das Potential als Hotel, Studentenwohnungen, hochwertige Monteurwohnungen und für die Ansiedlung von Nutzungen aus der Kreativwirtschaft, wie wissensbasierte Dienstleistungen, Ateliers und Start-Ups. In einer Machbarkeitsstudie ist eine Büronutzung unterstellt und somit eine modernisierte Weiterführung der ehemaligen Nutzung.
Fakten zum Gebäude im Überblick
| Baujahr | 1957 |
| Grundstücksgröße | 6.301 qm |
| Brutto-Grundfläche | 3.397 qm |
| Netto-Grundfläche | 2.750 qm |
| Denkmalschutz | Nein |




